Rury SN8 PP lite
PP Rura kanal. SN8 bm lita Zamów ten produkt przez eOrder
- Indeks: 3495102173
- EAN: 5905485484879
PP Rura kanal. SN8 bm lita Zamów ten produkt przez eOrder
Specyfikacja techniczna
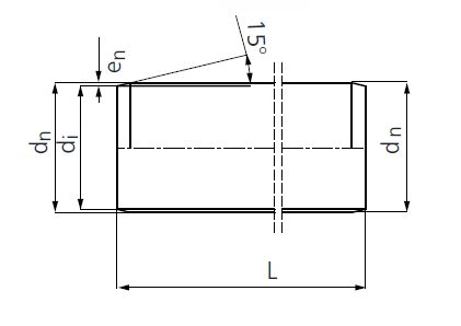
| Opis SAP | KZ PP Rura kanal. 400/13.9/3 SN8 bm lita |
|---|---|
| SBU | Kanalizacja zewnętrzna |
| PGU | Rury PP lite |
| Materiał | PP (Polypropylene) |
| Jednostka | SZT |
| Kolor | Brązowy |
| Typ połączenia | Łączniki kanalizacyjne |
| Sztywność obwodowa | SN 8 |
| Rodzaj ścianki | Lita |
| Obszar zastosowania | UD (pod konstrukcjami budynków oraz poza nimi) |
| Pakowanie na palecie | 3 |